Land To Let, Ipswich
4 photos
POA
Seven Hills Business Park,Felixstowe Road, Ipswich, IP10 0FG
Type
Land
Status
Available
Size
2.50 Acres
Key Features
- Roadside development opportunity up to 2.5 acres
- Strategic location at Junction 58 of the A14 at its intersection with the A12 (north)
- Daily traffic count on A14 of approximately 51,500 vehicles and A12 of 44,000 vehicles per day
- To be adjacent to brand new high quality 70 acre Business Park
- 3.5 MVA Power supply secured for roadside plot
- Enquiries invited for EV charging, retail, drive thru, drive to and roadside uses
Property Details
Location:
Seven Hills Business Park Will Be Situated Off The Roundabout At Junction 58 Of The A14 At Its Intersection With The A12. The Site Is On The Southeast Fringe Of Ipswich, Approximately 90 Miles Northeast Of Central London And 7 Miles Northwest Of The Port Of Felixstowe.
The Location Benefits From Excellent Road Connectivity With The A12 North Connecting With The East Suffolk Coast And Beyond Lowestoft And Great Yarmouth. The A14 Links The Port Of Felixstowe Ultimately With The National Road Network Connecting With The A1 And M1 Via Bury St Edmunds And Cambridge. The A12 South Links Back To London Via Colchester And Chelmsford.
Martlesham Immediately To The North, Is Home To Brightwell Lakes Which Will Comprise A 2,000 Home Scheme And Adastral Park, British Telecom's Global R&d Headquarters.
Travel Distances
Miles Time (approx.)
Felixstowe 7 12 Minutes
Norwich 53 80 Minutes
Colchester 22 35 Minutes
Cambridge 63 84 Minutes
London 88 150 Minutes
M25 58 65 Minutes
Description:
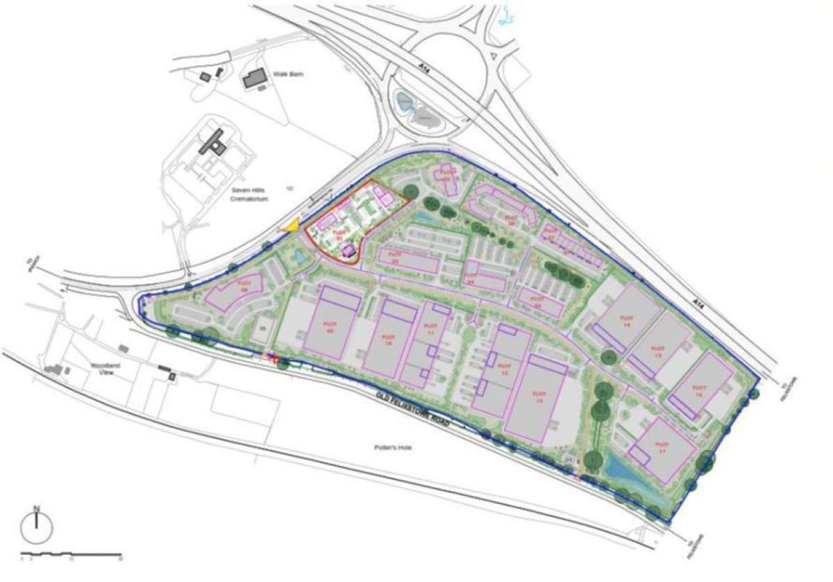
Seven Hills Business Park Will Comprise A 70 Acre Development At The Intersection Of The A12 And The A14. A Frontage Plot Of Approximately 2.5 Acres Has Been Reserved For Roadside Uses Which Will Benefit From The Extensive Traffic Flow On Both The A14 And A12 Together With The Business Park.
Daily Traffic Flows Recorded On The A14 Amount To 51,500 Vehicles Per Day (2022) And On The A12 44,000 Vehicles Per Day. The Development Will Be Accessible To Both East And West Bound Traffic On The A14 Together With The A12 Which Heads North/east To The Suffolk Coast.
There Are Committed Capacity Improvements To J58 To Be Delivered Via The S106 Agreement For The Brightwell Lakes Development, Together With Further Improvements To The Junction Announced In October 2023 By Suffolk County Council As Part Of A £64m Upgrade To The A12.
When Complete The Business Park Is Forecast To Create In The Region Of 2,600 Jobs.
Planning:
The Site Is Allocated In The East Suffolk Local Plan And The Proposed Scheme Is For A High-quality Business Park Providing Up To 950,000 Sq. Ft. Of Class B2, B8 And E(g) Uses Including Ancillary Facilities To Support The Development. It Is Envisaged This Can Incorporate Ev Charging, Convenience Retail, And Food And Beverage Facilities. An Outline Planning Application Has Been Submitted To East Suffolk Council Reference Dc/23/4699/out.
Site Area:
A Net Developable Area Of Approximately 2.5 Acres (1 Hectare) Can Be Made Available -see Plot 1 Indicative Site Plan.
There Is Potential To Split The Land Into Smaller Plots From 0.3 Acres Upwards Subject To Configuration.
Opportunity:
Our Client Envisages A Development Comprising Ev Charging, Convenience Retail, Drive Thru And Drive To Food And Beverage Facilities.
Plots Available From 0.3 Acres Either On A Freehold, Long Leasehold Or Occupational Lease Basis, Subject To Configuration. Alternatively, Occupiers' Requirements Can Be Accommodated On A Design And Build Basis.
Enquiries Are Invited From Ev Operators, Convenience And Drive Thru/drive To Operators.
Vehicular Accessibility:
Vehicular Access Will Be Via A New Central Spine Road Off Felixstowe Road, Providing Access To The A14/a12 Roundabout.
Services:
The Plot(s) Will Be Made Available On A Fully Serviced Basis. A Power Supply For The Business Park Has Been Secured, Of Which 3.5 Mva Will Be Supplied To The Roadside Plot In Order To Support Ultra-rapid Ev Charging.
Tenure / Terms:
Expressions Of Interest Are Invited In Parts Or All Of The Roadside Plot On Either A Freehold, Long Leasehold Or Lease Basis On Terms To Be Agreed. Further Information Can Be Provided Upon Application.
Vat:
All Figures Quoted Are Exclusive Of Value Added Tax, Which Is To Be Charged At The Prevailing Rate.
Legal Costs:
Each Party Is To Be Responsible For Its Own Legal And Professional Fees In Connection With This Transaction.
Viewing:
The Land Can Be Viewed From Felixstowe Road And Remains In Agricultural Use. Access Onto The Land By Prior Written Consent Only.
Further Information:
Please Contact The Joint Agents Below.
Jonathan Jones
Automotive And Roadside
07729 103461
Jonathan.jones2@colliers.com
Alisdair James
Automotive And Roadside
07712 538687
Alisdair.james@colliers.com
Alistair Mitchell
Fenn Wright
07889 663168
Agm@fennwright.co.uk
Seven Hills Business Park Will Be Situated Off The Roundabout At Junction 58 Of The A14 At Its Intersection With The A12. The Site Is On The Southeast Fringe Of Ipswich, Approximately 90 Miles Northeast Of Central London And 7 Miles Northwest Of The Port Of Felixstowe.
The Location Benefits From Excellent Road Connectivity With The A12 North Connecting With The East Suffolk Coast And Beyond Lowestoft And Great Yarmouth. The A14 Links The Port Of Felixstowe Ultimately With The National Road Network Connecting With The A1 And M1 Via Bury St Edmunds And Cambridge. The A12 South Links Back To London Via Colchester And Chelmsford.
Martlesham Immediately To The North, Is Home To Brightwell Lakes Which Will Comprise A 2,000 Home Scheme And Adastral Park, British Telecom's Global R&d Headquarters.
Travel Distances
Miles Time (approx.)
Felixstowe 7 12 Minutes
Norwich 53 80 Minutes
Colchester 22 35 Minutes
Cambridge 63 84 Minutes
London 88 150 Minutes
M25 58 65 Minutes
Description:
Seven Hills Business Park Will Comprise A 70 Acre Development At The Intersection Of The A12 And The A14. A Frontage Plot Of Approximately 2.5 Acres Has Been Reserved For Roadside Uses Which Will Benefit From The Extensive Traffic Flow On Both The A14 And A12 Together With The Business Park.
Daily Traffic Flows Recorded On The A14 Amount To 51,500 Vehicles Per Day (2022) And On The A12 44,000 Vehicles Per Day. The Development Will Be Accessible To Both East And West Bound Traffic On The A14 Together With The A12 Which Heads North/east To The Suffolk Coast.
There Are Committed Capacity Improvements To J58 To Be Delivered Via The S106 Agreement For The Brightwell Lakes Development, Together With Further Improvements To The Junction Announced In October 2023 By Suffolk County Council As Part Of A £64m Upgrade To The A12.
When Complete The Business Park Is Forecast To Create In The Region Of 2,600 Jobs.
Planning:
The Site Is Allocated In The East Suffolk Local Plan And The Proposed Scheme Is For A High-quality Business Park Providing Up To 950,000 Sq. Ft. Of Class B2, B8 And E(g) Uses Including Ancillary Facilities To Support The Development. It Is Envisaged This Can Incorporate Ev Charging, Convenience Retail, And Food And Beverage Facilities. An Outline Planning Application Has Been Submitted To East Suffolk Council Reference Dc/23/4699/out.
Site Area:
A Net Developable Area Of Approximately 2.5 Acres (1 Hectare) Can Be Made Available -see Plot 1 Indicative Site Plan.
There Is Potential To Split The Land Into Smaller Plots From 0.3 Acres Upwards Subject To Configuration.
Opportunity:
Our Client Envisages A Development Comprising Ev Charging, Convenience Retail, Drive Thru And Drive To Food And Beverage Facilities.
Plots Available From 0.3 Acres Either On A Freehold, Long Leasehold Or Occupational Lease Basis, Subject To Configuration. Alternatively, Occupiers' Requirements Can Be Accommodated On A Design And Build Basis.
Enquiries Are Invited From Ev Operators, Convenience And Drive Thru/drive To Operators.
Vehicular Accessibility:
Vehicular Access Will Be Via A New Central Spine Road Off Felixstowe Road, Providing Access To The A14/a12 Roundabout.
Services:
The Plot(s) Will Be Made Available On A Fully Serviced Basis. A Power Supply For The Business Park Has Been Secured, Of Which 3.5 Mva Will Be Supplied To The Roadside Plot In Order To Support Ultra-rapid Ev Charging.
Tenure / Terms:
Expressions Of Interest Are Invited In Parts Or All Of The Roadside Plot On Either A Freehold, Long Leasehold Or Lease Basis On Terms To Be Agreed. Further Information Can Be Provided Upon Application.
Vat:
All Figures Quoted Are Exclusive Of Value Added Tax, Which Is To Be Charged At The Prevailing Rate.
Legal Costs:
Each Party Is To Be Responsible For Its Own Legal And Professional Fees In Connection With This Transaction.
Viewing:
The Land Can Be Viewed From Felixstowe Road And Remains In Agricultural Use. Access Onto The Land By Prior Written Consent Only.
Further Information:
Please Contact The Joint Agents Below.
Jonathan Jones
Automotive And Roadside
07729 103461
Jonathan.jones2@colliers.com
Alisdair James
Automotive And Roadside
07712 538687
Alisdair.james@colliers.com
Alistair Mitchell
Fenn Wright
07889 663168
Agm@fennwright.co.uk
Location
Fenn Wright LLP
View all properties
Make an Enquiry
Fenn Wright LLP