Back to results

Retail/Shop For Sale, Brixham

Retail/Shop in Brixham
Retail/Shop in Brixham
Retail/Shop in Brixham
Retail/Shop in Brixham
£195,000 Freehold

The Skipper Inn,57 Drew Street, Brixham, TQ5 9LA

Type Retail/Shop
Status Under Offer
Size 7,406 sq ft

Key Features

  • Historic public house in busy residential area
  • Public bar, dining room and function room
  • Enclosed rear garden (plot size 0.17 acres)
  • Four bed owners accommodation
  • Works required to reopen
  • Grade II Listed
  • Walking distance to town centre and harbour
  • Priced to sell

Property Details

The Skipper Inn, Drew Street is approximately one mile from Brixham town centre and harbour and is set within an established residential area.

The Skipper Inn Is A Substantial Traditional Public House On Drew Street, Within Walking Distance Of Brixham Town Centre And Harbour. The Property Provides For Extended Ground Floor Trade Areas To Include Public Bar, Dining Room And Function Room. There Are Four Bedrooms And An Enclosed Rear Garden. The Skipper Is In Need Of Renovation But Has Been Priced To Reflect This And Represents A Great Opportunity To Reopen What Was Once A Busy Locals Venue. Please Note The Property Is Grade Ii Listed.

Location

The Skipper Inn, Drew Street Is Approximately One Mile From Brixham Town Centre And Harbour And Is Set Within An Established Residential Area.

Accommodation

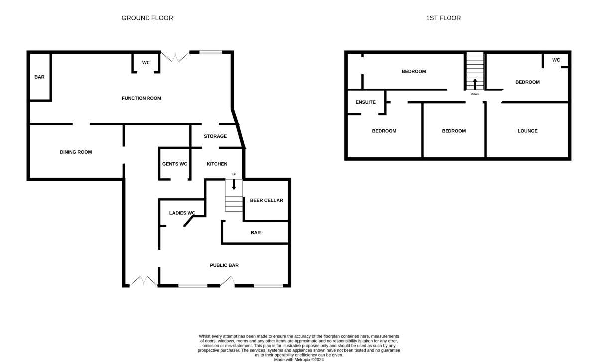
All Areas Are Approximate And Measured In Accordance With The Rics Property Measurement (2nd Edition).

Front Entrance To Public Bar ((8.4m X 5.7m) Having Wooden Bar Servery, Exposed Wood Ceiling Beams, With Part Exposed Stone Walls. Feature Fireplace. Space For C20 Covers. Ladies Wcs. Access To Inner Lobby And Seperate Customer Access To Covered Walkway (with Independent Access To The Front) To Rear Trade Areas. Gents Wcs. Dining Room (7m X 6m) With Space For C28 Covers. Function Room (13.8m X 7m Plus Recess Areas) With Separate Bar Servery, Wc And Double Doors To Rear Enclosed Beer Garden.

Kitchen (3.4m X 3.1m) With Access To Inner Lobby And Separate Washroom/store Leading To Function Room. Beer Cellar (2.7m X 2.2m).

The Inner Lobby Provides Access To The First Floor With Landing And Doors Off To:

Bedroom (4.4m X 2.6m Plus Recess And To Include Wc/utility) .
Lounge (5.8m X 4.2m).
Bedroom (4.2m X 3.8m Plus Recess) With Access To Shower Room/wc.
Bedroom (3.2m X 2.6m Plus Recess).
Bedroom (4.5m X 2.1 Plus Recess). Access To Shower Room/wc.

Planning

Sui Generis For Pub Use. Grade Ii Listed.

Rent / Price

Available Freehold With Vacant Possession At A Guide Price Of £195,000 Plus Vat. Any Offers Made Must Be Accompanied With Proof Of Funding.

Business Rates

From The Valuation Office Agency Website (www.voa.gov.uk) We Understand That The Current Rateable Value Is £6,000. This Would Qualify For Small Business Rates And Covid Relief And Applicants Are Encouraged To Check With The Local Authority. Council Tax Band B.

Services

We Understand That Mains Electricity, Water And Drainage Are Connected To The Property However These Services Have Not Been Tested By The Agents. Interested Parties Should Make Their Own Enquiries.

Epc

D(85)

Legal Fees

Each Party To Be Responsible For Their Own Legal Fees In Relation To This Transaction.

Vat

Vat Is Applicable To The Price.
Vickery Holman
Vickery Holman View all properties
Retail/Shop For Sale, Brixham
£195,000 Freehold

The Skipper Inn,57 Drew Street, Brixham, TQ5 9LA

Retail/Shop · Under Offer · 7,406 sq ft

Property ID: 132331

Send Enquiry
Vickery Holman
Vickery Holman View all properties

Make an Enquiry

Boxpod will only use your details to send an enquiry to the advertiser and prompt a response. By clicking Send Enquiry, you agree to Boxpod's Privacy Policy.

Make an Enquiry

Vickery Holman
Vickery Holman

Boxpod will only use your details to send an enquiry to the advertiser and prompt a response. By clicking Send Enquiry, you agree to Boxpod's Privacy Policy.

Call