Other To Let, Knaresborough
4 photos
POA
Unit 8-9 Knaresborough Station,Station Road, Knaresborough, HG5 9AA
Type
Other
Status
Available
Size
375 sq ft
Key Features
- Annual Station Footfall of 506,446 (1,388 per day)
- Regular services to Leeds, York and Harrogate
- New Lease Available
- Suitable for service retail / other business use
Property Details
On Behalf Of Northern, An Opportunity Is Available Within The Station Buildings At Knaresborough.
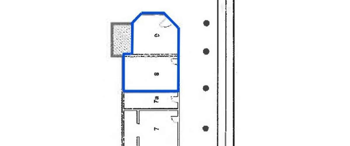
The Premises Verged Blue, Form Part Of The Station Buildings And Can Be Accessed Via The York Bound Platform. The Unit Is Comprised Of Two Rooms Each With Independent Access Onto The Platform. The Premises Are Currently Used As A Picture Framer's And The Landlord Welcomes A Similar Or Alternative Business Use.
Other Occupiers At The Station Include A Licensed Bar, Cafe And Antiques/arts Centre.
The Premises Verged Blue, Form Part Of The Station Buildings And Can Be Accessed Via The York Bound Platform. The Unit Is Comprised Of Two Rooms Each With Independent Access Onto The Platform. The Premises Are Currently Used As A Picture Framer's And The Landlord Welcomes A Similar Or Alternative Business Use.
Other Occupiers At The Station Include A Licensed Bar, Cafe And Antiques/arts Centre.
Location
LSH-Leeds
View all properties
Make an Enquiry
LSH-Leeds