Land For Sale, Inverness
3 photos
POA
Land Easter Ross Business Park, Inverness, IV17 0AH
Type
Land
Status
Available
Size
0 sq ft
Key Features
- Over 32 acres available
- Ideal for Industrial, office or dedicated yard space
- Located within the Cromarty Firth Green Freeport
Property Details
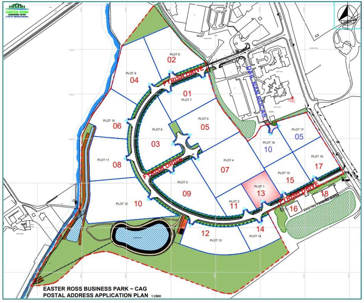
The Easter Ross Business Park is located in the Inverness and Cromarty Firth Green Freeport.
Over 32 Acres Of Flexible Development Space, Ideal For Industrial Use, Office Space, Or Dedicated Yard Space - Or Even A Combination Of All Three. Zoned Areas Ready For Development:- Flexible Unit Sizes From Small To Extra-large- Custom Plots, Including Two Acres Or More- Design And Fit-out To Suit Your Business Needs. Join A Thriving Business Community Located In The Inverness And Cromarty Firth Green Freeport.
The Easter Ross Business Park Is Located In The Inverness And Cromarty Firth Green Freeport.
Over 32 Acres Of Flexible Development Space, Ideal For Industrial Use, Office Space, Or Dedicated Yard Space - Or Even A Combination Of All Three. Zoned Areas Ready For Development:- Flexible Unit Sizes From Small To Extra-large- Custom Plots, Including Two Acres Or More- Design And Fit-out To Suit Your Business Needs. Join A Thriving Business Community Located In The Inverness And Cromarty Firth Green Freeport.
The Easter Ross Business Park Is Located In The Inverness And Cromarty Firth Green Freeport.
Location
Graham & Sibbald-Inverness
View all properties
Make an Enquiry
Graham & Sibbald-Inverness