Office For Sale, Fareham
4 photos
POA
1 - 4 North Park,Mayles Lane, Fareham, PO17 5LJ
Type
Office
Status
Available
Size
3,384 sq ft
Key Features
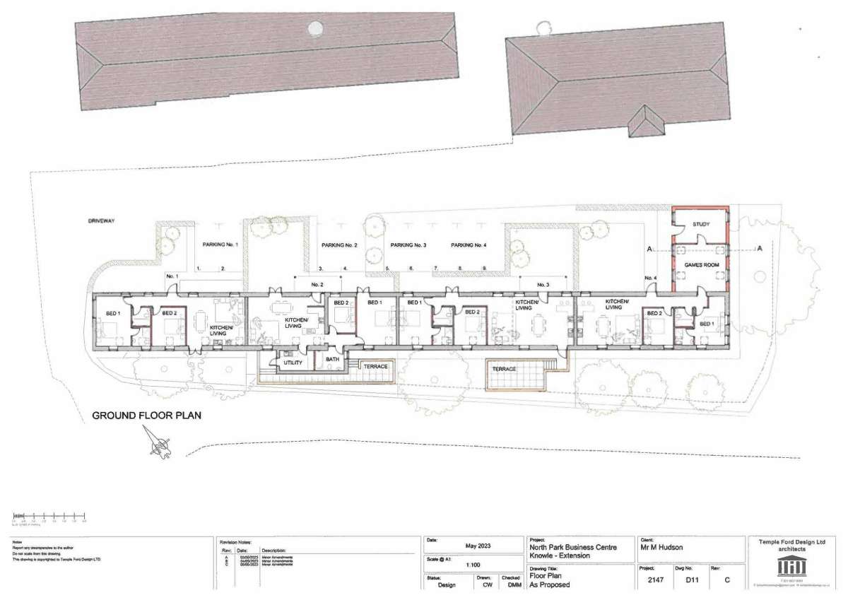
- Guide price £600,000
- Oven ready development to four dwellings with parking
- Attractive setting with good transport links
- Conversion Planning Ref - 23/01185/PNRCOU
- Extension Planning Ref - 23/01186/FUL
- Full plans available on request
Property Details
North Park Began Life As Part Of The Grouped Structures Forming Knowle Farm, Dating Back To 17th Century.
The Property Features Barn-style Single Storey Office Buildings, With 16 Parking Spaces And The Benefit Of Planning Permission For An Extension And Conversion To Four Residential Units. Previously Used As Offices By The Current Owners, The Building Is In Good Condition, Ready For The New Owner To Begin The Conversion Process.
The Property Features Barn-style Single Storey Office Buildings, With 16 Parking Spaces And The Benefit Of Planning Permission For An Extension And Conversion To Four Residential Units. Previously Used As Offices By The Current Owners, The Building Is In Good Condition, Ready For The New Owner To Begin The Conversion Process.
Location
LSH- Fareham
View all properties
Make an Enquiry
LSH- Fareham