Office To Let, Frome
4 photos
£1,500 / month
£18,000 pa
The Studio,The Retreat, Frome, BA11 5JU
Type
Office
Status
Available
Size
0 sq ft
Key Features
- New Build Office/Studio
- Not Yet Built
- Class E
- Car Parking available
- Quiet and Prestigious Setting
- Popular Frome
Property Details
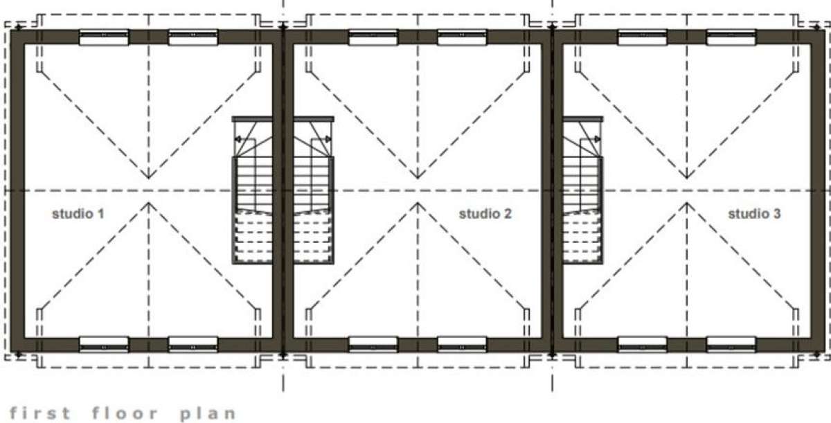
The employment area will comprise an attractive terrace of three qty. two storey studio buildings available as a whole or individually to let on new FR&I lease terms, once constructed. The studios will provide gross internal dimension of 7.51m x 6.29m per floor (94.48sqm / 1,017sqft overall) and will be well suited for a variety of E Class type uses and it is envisaged that they would readily suit designers, artist studio, professionals or similar. Allocated parking and visitor parking will be available.
An Opportunity To Rent New Build Office / Studio Space Within The Popular Somerset Town Of Frome, Nearby The Train Station. Consent Was Given August 2025 (ref: 2025/1151/vrc) For The Discharge Of Conditions Relating To The Construction Of 4 No. Dwellings And An Employment Studio Creating An Exclusive Development.
The Employment Area Will Comprise An Attractive Terrace Of Three Qty. Two Storey Studio Buildings Available As A Whole Or Individually To Let On New Fr&i Lease Terms, Once Constructed. The Studios Will Provide Gross Internal Dimension Of 7.51m X 6.29m Per Floor (94.48sqm / 1,017sqft Overall) And Will Be Well Suited For A Variety Of E Class Type Uses And It Is Envisaged That They Would Readily Suit Designers, Artist Studio, Professionals Or Similar. Allocated Parking And Visitor Parking Will Be Available.
What3words Location: ///awards.dress.flags
River Sidings Is A Perfect Location For Those Seeking Business Premises Within A Quiet And Prestigious Setting Yet Easily Accessible To The Train Station And Nearby Amenities.
The Studios Are Being Constructed Beside A Riverside Community Wildlife Area Within A Short Walk From The Town Centre. A Short Distance From Frome Train Station And The Concessions Including Rye Bakery.
The Studios Will Provide Gross Internal Dimension Of 7.51m X 6.29m Per Floor (94.48sqm / 1,017sqft Overall)
We Understand The Unit Will Benefit From Connection To Mains Electric, Water And Drainage. Services And Appliances Not Tested.
By Appointment Only Through The Sole Agents Cooper And Tanner 1908 Limited. Tel: 03450 34 77 58
We Understand That Vat Will Be Payable On The Rent.
An Agreement To Lease Would Be Entered Into In The First Instance In Advance Of Completion.
Deposit Subject To References/credit Checks.
Assignment Or Subletting Prohibited.
Lease To Be Excluded From The Provisions Of The Landlord & Tenant Act 1954 Sections 24-28 Inclusive (i.e. No Automatic Right To Renew At Lease Expiry)
Tenant Will Pay A Proportion Of Building Insurance Premium
Full Repairing And Insuring Lease.
The Properties Are Not Yet Under Construction. Interest Is Sought And Agreements To Lease Will Be Negotiated Prior To Works Commencing.
Be Aware That Cgi Images Have Been Used For The Proposed Development And The First And Second Pages. Plans Are Not To Scale. All Provided For Indicative Purposes.
Freehold
New Build Office/studio
Not Yet Built
Class E
Car Parking Available
Quiet And Prestigious Setting
Popular Frome
An Opportunity To Rent New Build Office / Studio Space Within The Popular Somerset Town Of Frome, Nearby The Train Station. Consent Was Given August 2025 (ref: 2025/1151/vrc) For The Discharge Of Conditions Relating To The Construction Of 4 No. Dwellings And An Employment Studio Creating An Exclusive Development.
The Employment Area Will Comprise An Attractive Terrace Of Three Qty. Two Storey Studio Buildings Available As A Whole Or Individually To Let On New Fr&i Lease Terms, Once Constructed. The Studios Will Provide Gross Internal Dimension Of 7.51m X 6.29m Per Floor (94.48sqm / 1,017sqft Overall) And Will Be Well Suited For A Variety Of E Class Type Uses And It Is Envisaged That They Would Readily Suit Designers, Artist Studio, Professionals Or Similar. Allocated Parking And Visitor Parking Will Be Available.
What3words Location: ///awards.dress.flags
River Sidings Is A Perfect Location For Those Seeking Business Premises Within A Quiet And Prestigious Setting Yet Easily Accessible To The Train Station And Nearby Amenities.
The Studios Are Being Constructed Beside A Riverside Community Wildlife Area Within A Short Walk From The Town Centre. A Short Distance From Frome Train Station And The Concessions Including Rye Bakery.
The Studios Will Provide Gross Internal Dimension Of 7.51m X 6.29m Per Floor (94.48sqm / 1,017sqft Overall)
We Understand The Unit Will Benefit From Connection To Mains Electric, Water And Drainage. Services And Appliances Not Tested.
By Appointment Only Through The Sole Agents Cooper And Tanner 1908 Limited. Tel: 03450 34 77 58
We Understand That Vat Will Be Payable On The Rent.
An Agreement To Lease Would Be Entered Into In The First Instance In Advance Of Completion.
Deposit Subject To References/credit Checks.
Assignment Or Subletting Prohibited.
Lease To Be Excluded From The Provisions Of The Landlord & Tenant Act 1954 Sections 24-28 Inclusive (i.e. No Automatic Right To Renew At Lease Expiry)
Tenant Will Pay A Proportion Of Building Insurance Premium
Full Repairing And Insuring Lease.
The Properties Are Not Yet Under Construction. Interest Is Sought And Agreements To Lease Will Be Negotiated Prior To Works Commencing.
Be Aware That Cgi Images Have Been Used For The Proposed Development And The First And Second Pages. Plans Are Not To Scale. All Provided For Indicative Purposes.
Freehold
New Build Office/studio
Not Yet Built
Class E
Car Parking Available
Quiet And Prestigious Setting
Popular Frome
Location
Cooper and Tanner
View all properties
Make an Enquiry
Cooper and Tanner