Back to results

Retail/Shop To Let, Birmingham

Retail/Shop in Birmingham
Retail/Shop in Birmingham
Retail/Shop in Birmingham
Retail/Shop in Birmingham
£833 / month
£10,000 pa

Cafe Birmingham Wholesale Market The Hub,Nobel Way, Birmingham, B6 7EU

Type Retail/Shop
Status Available
Size 1,237 sq ft

Key Features

  • Less than 3 miles north of Birmingham city centre
  • Purpose built facility
  • 78 individual sales units with rear loading
  • Secure with security access
  • Totally managed environment
  • The Wholesale Market is primarily a nighttime operation

Property Details

The Hub Is Situated Less Than 3 Miles North Of Birmingham City Centre And Within Easy Access Of The A34, A38 Aston Expressway And M6 Motorway.

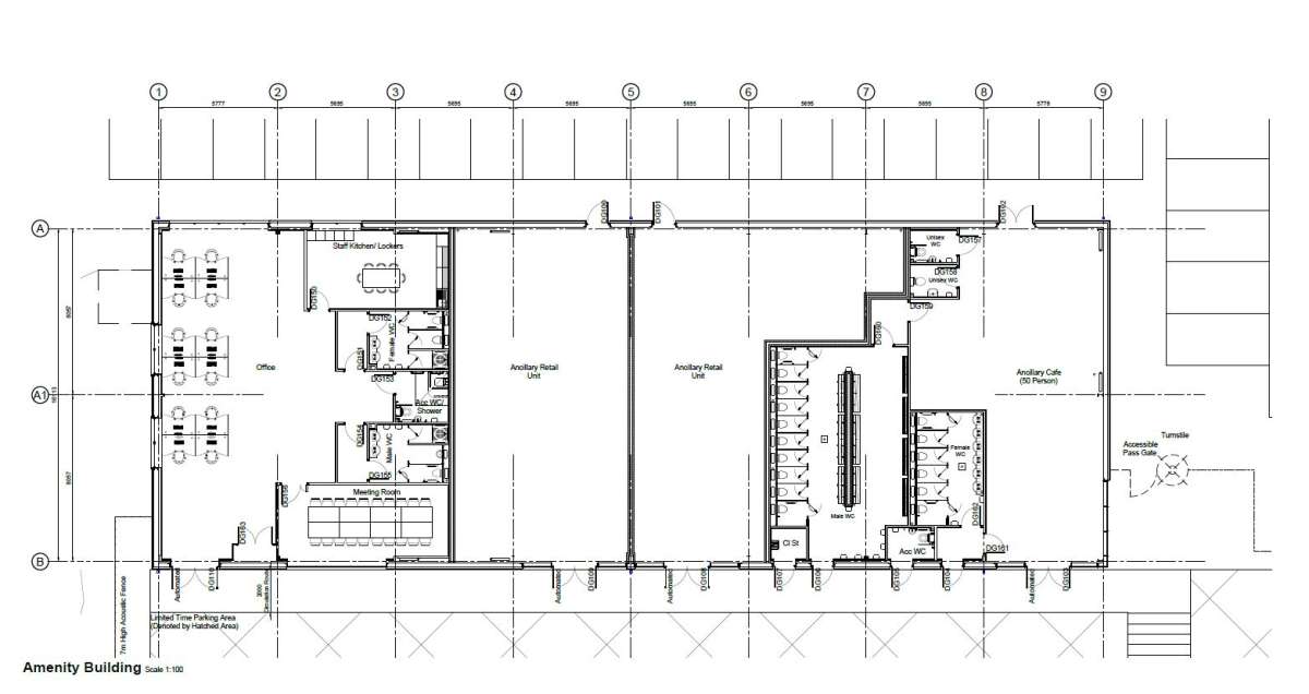
The New Purpose Built Birmingham Wholesale Markets Comprise 78 Sales Units In Addition To An Amenity Block Providing A Café Unit, Two Retail Units And Management Office.

The Wholesale Market Is Primarily A Night-time Operation Serving The Delivery And Sales Of Wholesale Fruit/veg/meat/fish/flowers. The Opening Hours Of The Cafe Will Have To Coincide With The Opening Hours Of The Market.
LSH-Birmingham
LSH-Birmingham View all properties
Retail/Shop To Let, Birmingham
£833 / month
£10,000 pa

Cafe Birmingham Wholesale Market The Hub,Nobel Way, Birmingham, B6 7EU

Retail/Shop · Available · 1,237 sq ft

Property ID: 57199

Send Enquiry
LSH-Birmingham
LSH-Birmingham View all properties

Make an Enquiry

Boxpod will only use your details to send an enquiry to the advertiser and prompt a response. By clicking Send Enquiry, you agree to Boxpod's Privacy Policy.

Make an Enquiry

LSH-Birmingham
LSH-Birmingham

Boxpod will only use your details to send an enquiry to the advertiser and prompt a response. By clicking Send Enquiry, you agree to Boxpod's Privacy Policy.

Call