Retail/Shop To Let, Glasgow
2 photos
£1,667 / month
£20,000 pa
Gallowgate, Glasgow, G31 4EB
Type
Retail/Shop
Status
Available
Size
1,044 sq ft
Key Features
- Popular Merchant City location
- Class 2 (Office) consent
- New FRI lease available
Property Details
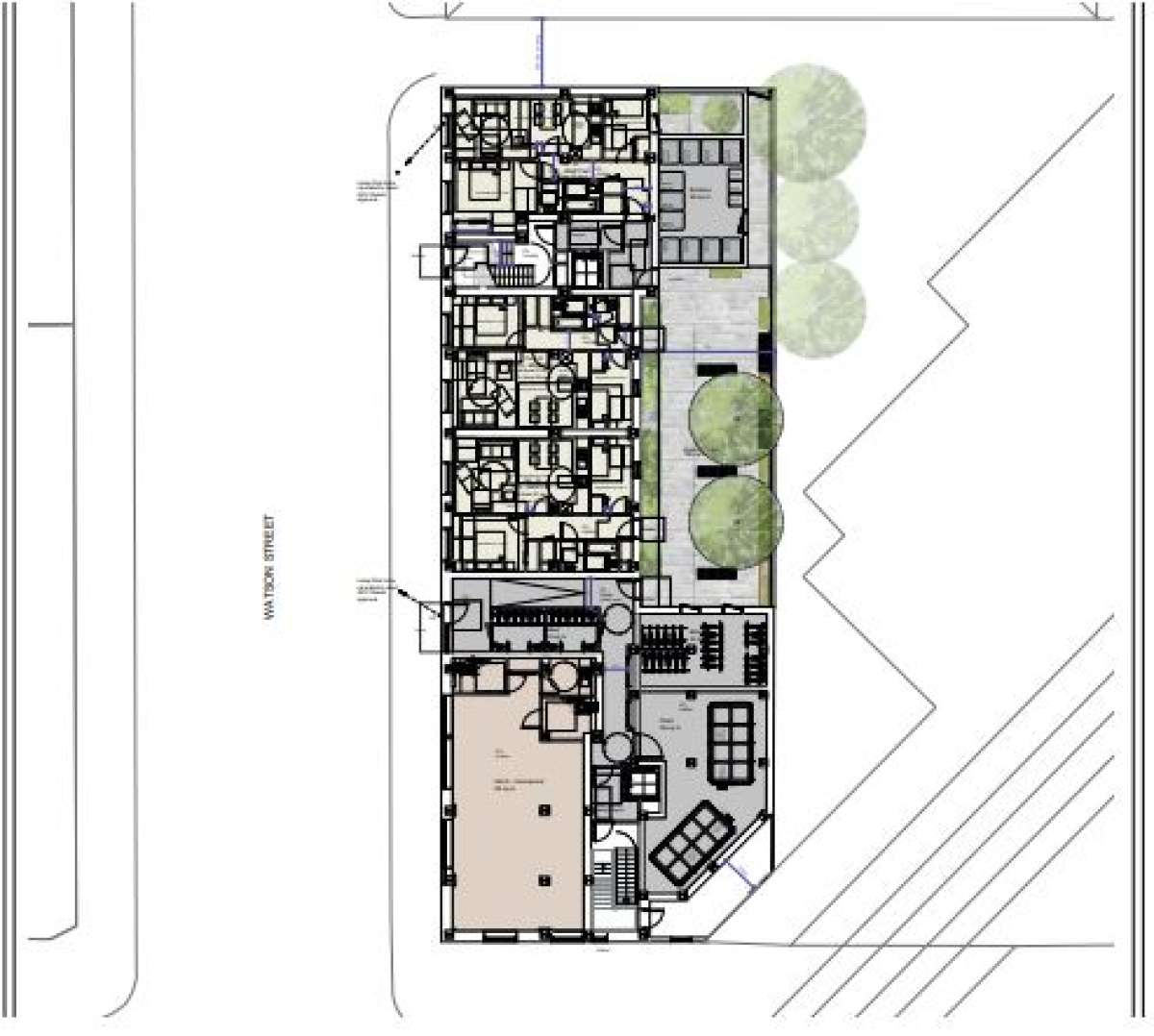
The subjects are located in Glasgow's Merchant City, on the north side of Gallowgate, at its junction with Watson Street. This area of the city has a large mix of retail, food & beverage and service based occupiers which cater to the large city centre resident population.
The subjects are adjacent to a number of national and local traders including, Dominos, Tesco, Subway, Maggie Mays and many others.
The Subjects Comprise A New Build Ground Floor Only Commercial Unit Forming Part Of A Larger New Build Residential Development Totalling 46 Units. The Unit Benefits From An Extensive Frontage On Gallowgate And A Return Frontage To Watson Street.
The Unit Is To Be Provided In A Shell Condition Ready For An Ingoing Tenant To Fit-out. Exact Details Can Be Obtained From The Letting Agents.
The subjects are adjacent to a number of national and local traders including, Dominos, Tesco, Subway, Maggie Mays and many others.
The Subjects Comprise A New Build Ground Floor Only Commercial Unit Forming Part Of A Larger New Build Residential Development Totalling 46 Units. The Unit Benefits From An Extensive Frontage On Gallowgate And A Return Frontage To Watson Street.
The Unit Is To Be Provided In A Shell Condition Ready For An Ingoing Tenant To Fit-out. Exact Details Can Be Obtained From The Letting Agents.
Location
Graham & Sibbald-Glasgow
View all properties
Make an Enquiry
Graham & Sibbald-Glasgow